Mieszkanie na drugim piętrze w kameralnym budynku na Starych Włochach ul. Krańcowa 17
Niewątpliwie największym atutem Włoch jest niska zabudowa, dużo zieleni i sielankowy klimat.
Z ulicy Krańcowej bezpośrednio możemy przejść do perełki Włoch - stawów Cietrzewia (teren do rekreacji, spacerów oraz zabawy z dziećmi)
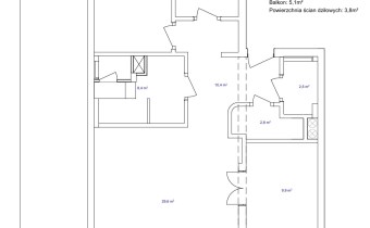
Mieszkanie usytułowane na drugim piętrze sprawia, że strefa dzienna z balkonem jest pięknie doświetlona.
Sam budynek jest zwrócony bokiem do ul. Krańcowej co sprawia, że osiedle jest bardzo kameralne i otulone zielenią. Monitorowane.
Mała ilość mieszkań bo tylko 24 to wielka zaleta tego budynku.
Mieszkanie składa się z:
Na podłodze piękny dąb oraz gres.
Całość mieszkania jest spójna z pięknymi elementami z drewna - drzwi, kuchnia.
Rozkład pokoi zapewnia dużą prywatność i komfort mieszkania. Wydzielona strefa dzienna oraz prywatna.
Jest możliwość uzyskać 3 sypialnię kiedy kuchnię wstawimy do przestronnego salonu.
W oknach rolety antywłamaniowe, a balkon posiada wysuwaną markizę - ochrona przed słońcem
W bliskiej odległości wszystkie środki transportu:
- 250 m do przystanku autobusowego z bezpośrednim połączeniem z centrum na ul. Popularnej (191,178,127)
- 900 m do stacji kolejowej do centrum (15min do W-wa Śródmieście)
- 150 m Apteka, Żabka
- 900 m do Biedronki i Lidla na ul. Plastycznej
- 350 m Castorama, Macro, Pizza Hut czy KFC
W pobliżu zjazd na Południową Obwodnicę Warszawy.
W sąsiedztwie szkoła podstawowa na ul. Cietrzewia
W pobliżu przedszkola/żłobki prywatne oraz państwowe.
Tutaj nie będziesz się nudził. Ścieżką rowerową wzdłuż ulicy Popularnej możesz dojechać do pięknego Parku Kombatantów ( dwa place zabaw dla dzieci), a potem nad Stawy Koziorożca.
Dom Kultury na ul. Chrobrego oraz Dom Kultury ADA ul. Chrościckiego to fajne miejsca gdzie można skorzystać z szerokiej gamy warsztatów, zajęć lub obejrzeć dobry film w kameralnym studio.
Dzielnica też posiada bogatą ofertę gastronomiczną.
Do mieszkania miejsce postojowe w garażu podziemnym w kwocie 50 tyś zł.
Odrębna własność lokalu - możliwość zakupu za środki pochodzące z kredytu bankowego.
Zapraszam do kontaktu
Kontakt w sprawie oglądania tylko pod tel. 530-489-378



