Warszawa, Mokotów, Stegny, Faworytki

Mieszkanie na sprzedaż

Opis nieruchomości

Nowoczesne mieszkanie 3 metry wysokości, taras 10 metrów, 2 łazienki, garderoba, garaż

Na sprzedaż jasne i funkcjonalne trzypokojowe mieszkanie o powierzchni 78 m2, z ekspozycją na wschód i pięknym widokiem na zieleń. Ponadprzeciętna wysokość pomieszczeń (3m) oraz duże drewniane okna zapewniają wyjątkowe doświetlenie i poczucie przestrzeni. 

Do mieszkania przynależy duży, wygodny taras (ponad 10 m2), idealny do wypoczynku, z dużą prywatnością - brak okien sąsiadów naprzeciwko. 

ATUTY MIESZKANIA

- wysokość 3 m - rzadko spotykana w nowym budownictwie
- duży taras z widokiem na zieleń
- dwie łazienki (jedna z kabiną prysznicową a druga z wanną)
- osobna garderoba z miejscem na pralkę i suszarkę
- 2 hektary parku należącego do mieszkańców
- wysoki standard części wspólnych (reprezentacyjna recepcja o wysokości 5 metrów, ochrona 24/7)
- duże drewniane okna z elektrycznymi roletami zaciemniającymi
- drewniany parkiet na podłodze (jodełka)
- meble wykonane na wymiar w całym mieszkaniu 

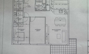
UKŁAD POMIESZCZEŃ

- salon z aneksem kuchennym (31,65 m2)
- sypialnia 1 (12,59 m2)
- sypialnia 2 (11,56 m2)
- garderoba (2,86 m2)
- łazienka z wanną (ok. 4 m2)
- łazienka z prysznicem (3,5 m2)
- hol (9,19 m2)
- taras (ponad 10 metrów)
Możliwość oddzielenia kuchni od salonu ścianą. 

STANDARD BUDYNKU I OSIEDLA

Budynek z 2018 roku, z całodobową ochroną, recepcją, monitoringiem oraz eleganckimi częściami wspólnymi. Osiedle wyposażone jest w prywatny park oraz ścieżki rowerowe, idealne miejsce do spacerów i aktywnego wypoczynku.

LOKALIZACJA

W bezpośrednim sąsiedztwie:

- tramwaj
- liczne linie autobusowe 
- 2 przystanki do metra Wilanowska (ok. 15 minut pieszo)
- szybki dojazd do centrum i innych dzielnic

W okolicy:

- sklepy (Biedronka, Żabki, Rossmann, Delikatesy Frac)
- restauracje i kawiarnie
- przedszkola i żłobki
- treny spacerowe (Potok Służewiecki, Skarpa Ursynowska)

DODATKOWE INFORMACJE:

Do mieszkania przynależy wygodne, stacjonarne miejsce postojowe w garażu podziemnym (poziom -1) dodatkowo płatne - cena: 50 000 złotych

Forma własności: lokal stanowiący odrębną nieruchomość z księgą wieczystą - możliwość zakupu za środki pochodzące z kredytu bankowego. 

Więcej informacji pod numerem telefonu 694 930 108 lub papiez@papieznieruchomosci.pl

Modern 3m-High Apartament with Terrace, Walk-In Closet, 2 Bathrooms & Parking
Green Views, Security 24/7

Bright and spacious 3-room apartament with an execptional ceiling height of 3 meters, large wooden windows and open green views. The property includes a generous terrace of over 10 m2 with outstanding privacy and comfortable space for outdoor seating and relaxation. South-east exposure ensures plenty of daylight throughout the day. 

Located on the 3rd fkoor of a high-standard residential building from 2018, featuring an impressive reception area(5+ meters high), 24/7 seciurity, monitoring and access to a private residents park of approx , 2 hectars.

KEY FEATURES

- rare 3 m ceiling height
- terrace (10 +m2) facing greenery, private outlook
- two full bathrooms (bathtub + walk-in shower)
- walk-in closet
- large floor-to-ceiling wooden windows with blackout blinds
- built-in, custom-made furniture
- engineered wooden parquet in herringbone pattern
- high-spec finishes and modern lighting
- ready to move in

PROPERTY LAYOUT

- living room with kitchen (31,65 m2)
- Bedroom 1 (12,59 m2)
- Bedroom 2 (11,56 m2)
- Walk-in closet (2,86 m2)
- Bathroom with bathtub (approx. 4m2)
- Bathroom with shower (approx. 3,5 m2)
- Hallway (9,19 m2)
- Terrace (10 +m2)
The kitchen can be easily separated from the living room if required

BUILDING & AMENITIES

- 2018 construction
- elegant lobby and reception
- 24/7 security & CCTV
- park owend by residents
- lift access
- bike stands and stroller space

LOCATION

Exellent connectivity with direct access to:

- tram lines
- multiple bus lines
- 2 stops to Wilanowska Metro station (approx. 15 minutes walking)
The neighbourhood offers a variety of green areas for leisure and sports, including the Potok Służewiecki valley and Skarpa Ursynowska, ideal for walking, running and cycling. 

LOCAL INFRASTRUCTURE

Within short walking distance:

- grocery stores (Biedronka, convenience stores)
- pharmacy
- kindergartens and nursery 
- beaty and cosmetic service
- Rossmann drugstore
- Delikatesy Frac

PARKING

A fixed, standard parking space (not on platform) in the underground garage on level -1, available for an additional 50 000 PLN

PROPERTY STATUS

- full ownership (eligible for mortgage financing) 
- ready to move in
- possibility to negotiate selected furniture and equipment

 

Nota prawna

Opis oferty zawarty na stronie internetowej sporządzany jest na podstawie oględzin nieruchomości oraz informacji uzyskanych od właściciela, może podlegać aktualizacji i nie stanowi oferty określonej w art. 66 i następnych K.C.

Szczegóły oferty

Symbol oferty PAP-MS-3962
Powierzchnia 78,00 m²
Powierzchnia balkonów/tarasów 10,00 m²
Liczba pokoi 3
Piętro 3
Rodzaj budynku apartamentowiec
Technologia budowlana mieszana
Standard
Liczba pięter w budynku 6
Garaż miejsce parkingowe
Stan lokalu dobry
Stan prawny Odrębna własność lokalu
Mies. czynsz admin. 1 246 PLN
Okna DREWNIANE NOWY TYP
Instalacje nowe
Balkon taras
Liczba balkonów 1
Liczba tarasów 1
Rok budowy 2018
Widok park/skwer
Gaz brak
Woda ciepła - miejska
Dojazd ASFALTOWA
Otoczenie park
Ogrzewanie C.O. miejskie
Winda tak
Liczba wind 2
Tarasy taras
Usytuowanie jednostronne
Przystosowania dla niepełnosprawnych tak

Pomieszczenia

Powierzchnia pokoi 32,12; 11 m2
Podłogi pokoi drewniana
Typ kuchni otwarta na pokój
Rodzaj kuchni jasna z oknem
Powierzchnia kuchni 6 m2
Podłoga kuchni terakota
Typ łazienki razem z wc
Liczba łazienek 1
Powierzchnia łazienki 4 m2
Glazura łazienki glazura
Podłoga łazienki terakota
Wyposażenie łazienki lustro, pralka, umywalka, wanna
Liczba WC 1
Powierzchnia WC 3,4 m2
Glazura WC glazura
Podłoga WC terakota

Lokalizacja

Kalkulator kredytowy

PLN
%
Wysokość raty

Kalkulator kosztów

PLN
PLN
PLN
PLN
PLN
PLN
%
PLN
Podatek od czynności cywilno-prawnych
Taksa notarialna (opłata notarialna)
VAT od taksy notarialnej (opłaty notarialnej)
Wniosek do WKW
VAT od wniosku do WKW
Prowizja agencji nieruchomości
VAT od prowizji agencji nieruchomości
Wypisy aktu notarialnego - około
RAZEM (cena + opłaty)

Podobne oferty

mieszkanie na sprzedaż - Warszawa, Śródmieście, Stare Miasto

mieszkanie na sprzedaż

Warszawa, Śródmieście, Stare Miasto
3 pokoje 53,00 m2 33 943,40 zł/m2
oferta na wyłączność
mieszkanie na sprzedaż - Warszawa, Ursynów, Kabaty, Mielczarskiego

mieszkanie na sprzedaż

Warszawa, Ursynów, Kabaty, Mielczarskiego
4 pokoje 115,00 m2 17 391,30 zł/m2
oferta na wyłączność
mieszkanie na sprzedaż - Warszawa, Włochy, Stare Włochy, Krańcowa

mieszkanie na sprzedaż

Warszawa, Włochy, Stare Włochy, Krańcowa
3 pokoje 88,40 m2 14 705,87 zł/m2

Napisz do nas

Proszę wypełnić to pole
Proszę wypełnić to pole
Proszę wypełnić to pole
Proszę wypełnić to pole
Trwa wysyłanie...

Ta strona wykorzystuje pliki cookies w celach statystycznych oraz w celu dostosowania naszych serwisów do indywidualnych potrzeb klientów. Zmiany ustawień dotyczących plików cookie można dokonać w dowolnej chwili modyfikując ustawienia przeglądarki. Korzystanie z tej strony bez zmian ustawień dotyczących cookies oznacza, że będą one zapisane w pamięci urządzenia.

rozumiem